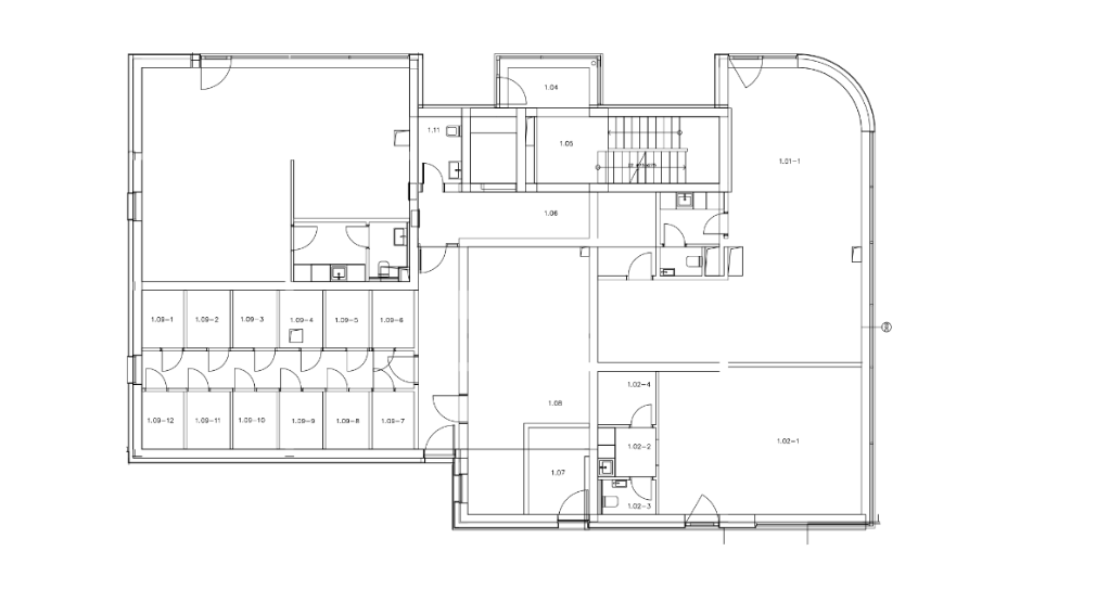
1.NP
PÔDORYS 1.NP
Nebytový priestor 1.01
Celková výmera: 79,41 m²
Cena:
222 348 EUR
| Číslo | Miestnosť | m² | Podlaha | Steny | Strop |
|---|---|---|---|---|---|
| 1.01-1 | OBCHODNÝ PRIESTOR | 4,84 | betónový poter | stroj. omietka | betón |
| 1.01-1 | OBCHODNÝ PRIESTOR | 63,54 | betónový poter | stroj. omietka | betón |
| 1.01-2 | KUCHYNKA | 3,83 | betónový poter | stroj. omietka | betón |
| 1.01-3 | WC | 1,40 | keramická dlažba | stroj. omietka/obklad | betón |
| 1.01-4 | SKLAD | 5,80 | betónový poter | stroj. omietka | betón |
Nebytový priestor 1.02
Celková výmera: 53,54 m²
Cena:
149 912 EUR
| Číslo | Miestnosť | m² | Podlaha | Steny | Strop |
|---|---|---|---|---|---|
| 1.02-1 | OBCHODNÝ PRIESTOR | 43,24 | betónový poter | stroj. omietka | betón |
| 1.02-2 | KUCHYNKA | 3,40 | betónový poter | stroj. omietka | betón |
| 1.02-3 | WC | 3,20 | keramická dlažba | stroj. omietka/obklad | betón |
| 1.02-4 | SKLAD | 3,70 | betónový poter | stroj. omietka | betón |
Nebytový priestor 1.03
Celková výmera: 70,70 m²
Cena:
197 960 EUR
| Číslo | Miestnosť | m² | Podlaha | Steny | Strop |
|---|---|---|---|---|---|
| 1.03-1 | OBCHODNÝ PRIESTOR | 63,21 | betónový poter | stroj. omietka | betón |
| 1.03-2 | KUCHYNKA | 5,13 | betónový poter | stroj. omietka | betón |
| 1.03-3 | WC | 2,36 | keramická dlažba | stroj. omietka/obklad | betón |
